349.888 €

Ausstattung
  • Schlafzimmer: 3
  • Badezimmer: 2
  • m2: 79
Lage

Savski Venac , Dedinje

Beschreibung

Predstavljamo Vam ekskluzivan projekat na prestižnoj lokaciji – Dedinje. Ovaj moderan stambeni kompleks nudi luksuzne stanove sa pažljivo osmišljenim rasporedom, vrhunskim materijalima i prelepim pogledima. U mirnom okruženju, a u blizini svih važnih sadržaja, ovaj ekskluzivni projekat pruža idealan balans komfora, elegancije i praktičnosti.

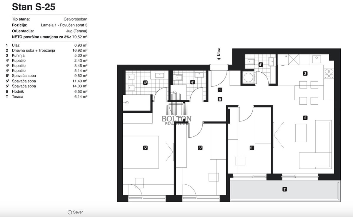
Četvorosoban stan sa lepom terasom na trećem povučenom spratu,  okrenut prema  južnoj strani. Idealan za porodice. Dva kupatila i toalet, predvidjena mesta za plakare u svakoj sobi. Kuhinja projektovana kao deo dnevne sobe i trpezarije ali ipak  izdvojena od dela u kome se provodi najviše vremena. Na ovoj etaži ima ukupno 4 stambenih jedinica.

Završetak radova mart 2026. godine. Garažna mesta se prodaju po ceni od 36,000 Eura.

Kontaktirajte nas za više informacija o stanovima u ponudi!

Bez agencijskih troskova za kupce!

 

Übersicht
  • ID: 410
  • Typ: Wohnung
  • Parkplätze: 0
  • Garage: 0
  • Zimmer: 4 Zimmer
  • Schlafzimmer: 3 Zimmer
  • Badezimmer: 2 Zimmer
  • Anzahl der Stockwerke: 3
  • Stockwerk: 8
  • Grundstücksfläche: / m2
  • Größe: 79 m2
  • Baujahr: 2025 J
  • Renovierungsjahr: / J
  • Energieklasse: /
Immobiliendetails
ID
410
Typ
Wohnung
Parkplätze
0
Garage
0
Zimmer
4 Zimmer
Schlafzimmer
3 Zimmer
Badezimmer
2 Zimmer
Anzahl der Stockwerke
3
Stockwerk
8
Grundstücksfläche
/ m2
Größe
79 m2
Baujahr
2025 J
Renovierungsjahr
/ J
Energieklasse
/
Kartenansicht
  • City Area
    Dedinje
  • City
    Savski Venac
  • County
    Beograd
  • Country
    Srbija
Verkäufer kontaktieren
+

Ähnliche Immobilien