231.428 €

Ausstattung
  • Schlafzimmer: 2
  • Badezimmer: 1
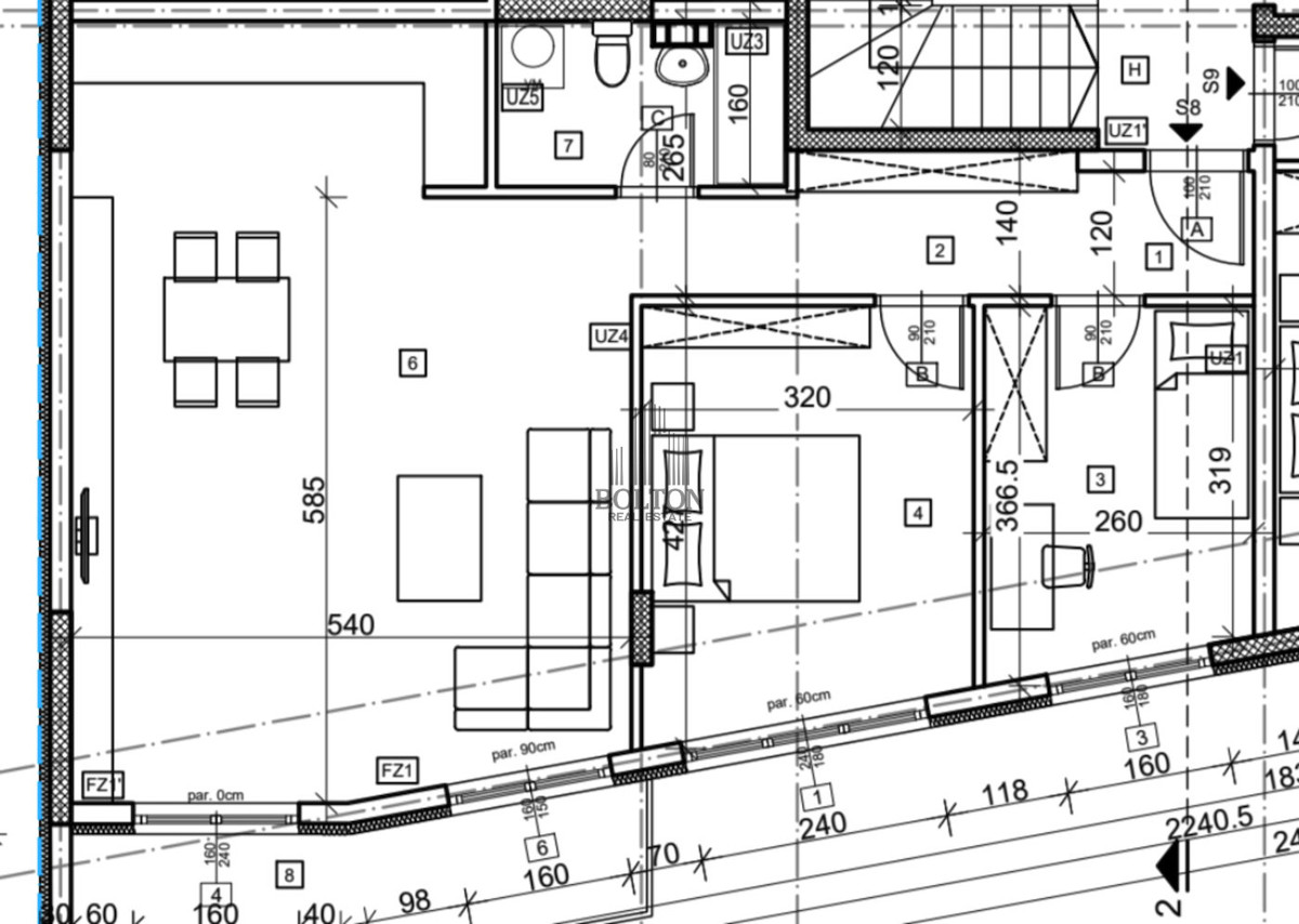
  • m2: 75
Lage

Voždovac , Lekino Brdo

Beschreibung

Predstavljamo vam novu zgradu u izgradnji koja se završava na jesen 2025. godine. Zgrada se nalazi na mirnoj i prijatnoj lokaciji na Lekinom brdu, idealnoj za porodični život, a istovremeno pruža brz i lak pristup glavnim saobraćajnicama. Investitori koji stoje iza ovog projekta već su uspešno realizovali više stambenih objekata na različitim lokacijama, čime su stekli poverenje brojnih zadovoljnih kupaca.

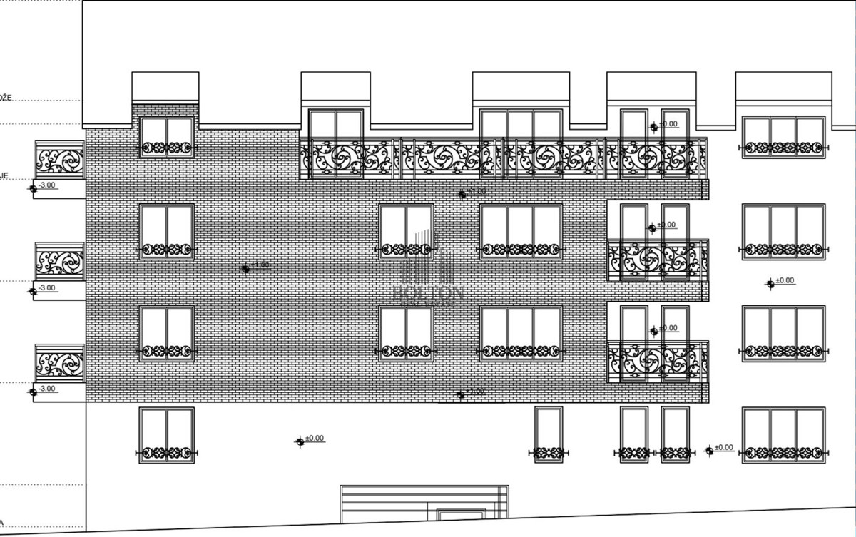
Elegantan eksterijer i vrhunski kvalitet izgradnje
Zgrada će imati prepoznatljiv i luksuzan eksterijer od crne fasadne cigle, sa pažljivo izrađenim detaljima od kovanog gvožđa na terasama. Pored elegantnog izgleda, pažnja je posvećena funkcionalnosti i kvalitetu materijala.

Unutrašnji standard i oprema

  • Podno grejanje sa kotlom za svaki stan omogućava komfor i ekonomičnu kontrolu potrošnje.
  • Podovi će biti obloženi troslojnim parketom - tarketom, koji pruža izdržljivost i toplinu.
  • Stolarija je kombinacija aluminijuma i drveta, sa ugrađenim električnim podizačima za roletne.
  • Unutrašnja vrata su proizvod renomiranog proizvođača Drvolik, poznata po savršenoj završnoj obradi i dugotrajnosti.

Moderna kupatila
Kupatila u zgradi biće opremljena visokokvalitetnim pločicama i sanitarijama, sa tuš kabinama od sigurnosnog stakla, ugradnim mešačima za vodu. Dizajn je savremen, prilagođen estetici modernog življenja, a istovremeno praktičan za svakodnevnu upotrebu.


Ova zgrada predstavlja savršen spoj praktičnosti, kvaliteta i funkcionalnosti, pružajući budućim stanarima siguran i komforan dom u mirnom okruženju. Savršeno projektovana za potrebe savremenih porodica, u mirnom kraju, sa svim pogodnostima koje pruža centralna lokacija.

Sve cene su izražene sa PDV-om i nema agencijskih troskova.

Übersicht
  • ID: 407
  • Typ: Wohnung
  • Parkplätze: 0
  • Garage: 0
  • Zimmer: 3 Zimmer
  • Schlafzimmer: 2 Zimmer
  • Badezimmer: 1 Zimmer
  • Anzahl der Stockwerke: 4
  • Stockwerk: 50
  • Grundstücksfläche: / m2
  • Größe: 75 m2
  • Baujahr: 2025 J
  • Renovierungsjahr: / J
  • Energieklasse: /
Immobiliendetails
ID
407
Typ
Wohnung
Parkplätze
0
Garage
0
Zimmer
3 Zimmer
Schlafzimmer
2 Zimmer
Badezimmer
1 Zimmer
Anzahl der Stockwerke
4
Stockwerk
50
Grundstücksfläche
/ m2
Größe
75 m2
Baujahr
2025 J
Renovierungsjahr
/ J
Energieklasse
/
Kartenansicht
  • City Area
    Lekino Brdo
  • City
    Voždovac
  • County
    Beograd
  • Country
    Srbija
Verkäufer kontaktieren
+

Ähnliche Immobilien